Property Details
Peebles EH45 8PJ
Description
A substantial single house plot in a south facing position, set within a surrounding farm, with adjoining open fields and direct access to country walks
Residential - Peebles
The plot totals approximately 0.27 Ha (0.67 acres) and is currently accessed from the Nether Kidston Farm road by way of a small wooden bridge and field gate. The planning permission requires the construction of a small bridge over the Kidston Burn to solely access to the plot. The plot is clearly delineated by double post and wire fences with mixed species hedging in between along the north, east and west boundaries, with a stone dyke forming the southern boundary.
LOCATION
The Kidston Bank Plot is situated approximately two miles north of Peebles within the Eddleston Water valley and is accessed off the A703 Edinburgh Road by the private road to Nether Kidston Farm.
Peebles is a thriving market town set on the River Tweed and surrounded by magnificent countryside. It lies approximately 25 miles south of Edinburgh which makes it popular with commuters and families. Local buses travel on a regular basis into Edinburgh city centre, in addition to Galashiels to the east. It retains a full range of shops and services as well as primary and secondary schooling. The wider area retains an abundance of outdoor pursuit opportunities, including fishing, hillwalking, trail running and mountain biking, with mountain biking at Glentress Forest, situated 2 miles to the east of the town.
DIRECTIONS
From Edinburgh, take the A703 south from the Hillend junction, through Penicuik and continue straight on at the Leadburn junction (signposted “Peebles A703”). Continue through the village of Eddleston and beyond the “40” limit for approximately two miles. Pass the entrance to Cringletie House Hotel and continue for another quarter of a mile. Turn right onto the tarmac farm road just after the house known as “Moy Hall” (Nether Kidston Farm). Continue along the private farm road (crossing the Eddleston Water) and past the farm cottages on your right. The Kidston Bank Plot is immediately after the top cottage on the right.
Post Code: EH45 8PJ. It is strongly recommended that you do not rely on Satnav in this rural location and check on a route map prior to any scheduled viewing.
What3Words: /// ///choppers.arrived.variously
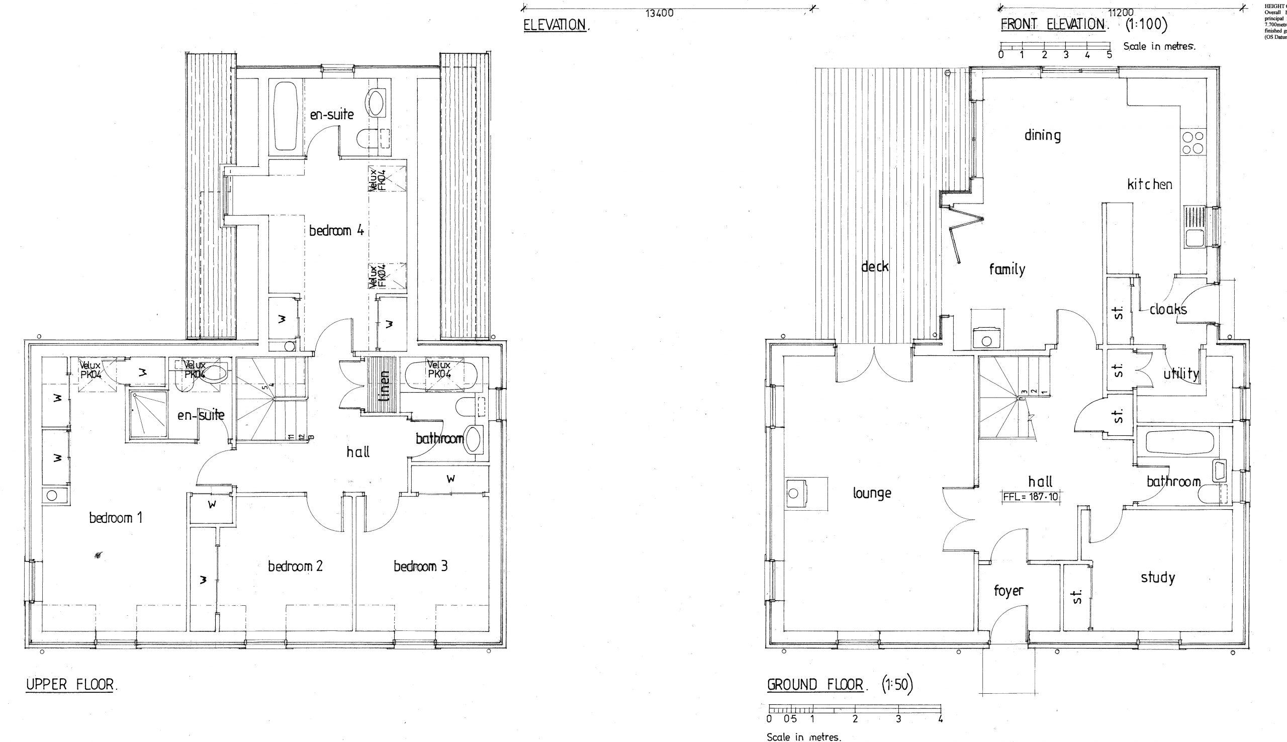
PLANNING PERMISSION
The plot benefits from a consolidated Planning Permission for a single, two storey detached house, granted by Scottish Borders Council on 13 April 2017. Relevant Applications:
- 16/01473/AMC – Erection of dwelling house (approval of matters specified in all conditions persuant to planning permission 13/00379/PPP). Subject to various conditions, which were approved and the permission consolidated on 8 April 2020
- 13/00379/PPP – Erection of dwellinghouse (renewal of planning permission 09/00008/OUT)
- 09/00008/OUT – Erection of dwellinghouse
The permission is subject to a Section 75 planning agreement in which the developer will pay a contribution to Scottish Borders Council for primary school and high school improvements. Interested parties should satisfy themselves with regards to the contribution amount applicable.
SERVICES
A public water supply (private pipework) currently runs close to the plot. An electricity line runs across the site. Scottish Power Energy Networks (SPENs) have provided an indicative plan to show the alterations to the line required and associated costings, as part of the development. Further details are available from the selling agents.
The site will be sold with rights to access water and electricity, so far as the seller’s title allows. A private means of drainage (biodigester septic tank to be situated on site) and heating will be required.
Interested parties should make their own enquiries with the relevant utility providers with regards to availability and costings for servicing the site, however, further details are available from the selling agents.
ACCESS
Access to the plot is taken off the private access road to Nether Kidston Farm (shaded in blue on the sales plan), for which full access rights from the public road will be granted, subject to agreed maintenance obligations.
The private road includes a bridge over the Eddleston Water, which retains a weight restriction of 8 tonnes and a width restriction that will limit access to the plot by large and heavy vehicles. Buyers should satisfy themselves in this regard.
This private road is designated as a “Core Path”.
INFORMATION PACK
An information pack, including copies of the Planning Permissions; related drawings; and services information, is available from the selling agents to parties noting interest and able to demonstrate proof of funding.
ENTRY
By mutual agreement.
HORSE GRAZING LAND
Nearby grazing land, suitable for horses, may be available to rent by separate negotiation.
VIEWINGS AND FURTHER INFORMATION
For further information or to arrange an appointment to view please contact Walker Scott Ireland Ltd. Viewing is strictly by appointment. Interested parties are advised to note interest with Walker Scott Ireland Ltd in order to be kept informed of any closing date that is set. Please note, our client need not accept the highest offer, nor indeed any offer.
ANTI-MONEY LAUNDERING REGULATIONS
To comply with current Anti-Money Laundering Regulations, any offer presented must be accompanied with Notarised/certified photographic evidence of the purchaser’s identity and separate evidence of the purchaser’s residential address, or the offering parties must attend our offices with the original documents, before any acceptance of the offer can be confirmed and the property put “Under Offer”.
LOCAL AUTHORITY
Scottish Borders Council, Newtown St Boswells, Melrose, TD6 0SA
UTILITY PROVIDERS
SP Energy Networks, Customer Connections, 55 Fullarton Drive, Cambuslang, Glasgow, G32 8FA
Tel: 0141 614 9997
Scottish Water, Castle House, 6 Castle Drive, Carnegie Campus, Dunfermline, KY11 8GG.
Property Features
- Land is 0.67 acre






